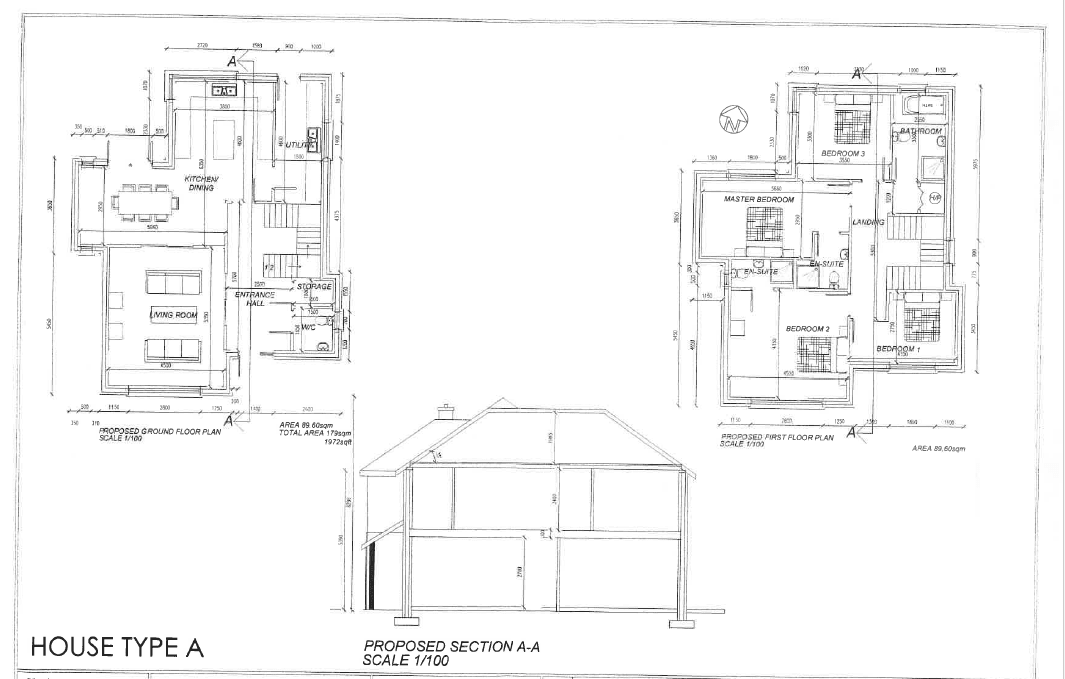
Exceptional 4 bedroom two storey residence under construction at Roscommon premier residential location adjacent to and overlooking Roscommon Golf Course. This property which is being sold as a builder’s finish, enjoys a stunning location within walking distance of the Town centre and all amenities including schools, pubs, restaurants etc.
Spacious accommodation includes entrance hallway, large sitting room, open plan kitchen/dining room, utility and downstairs toilet. First floor, 4 spacious bedrooms (2 en-suite) and family bathroom. This is without doubt a once in a lifetime opportunity to purchase a new home at this prestigious location.
Features include:
'A' rated property
Air to water and heat recovery system
Hollowcore flooring
Landscaped grounds
Attractive brick facade
House fully painted internally
Choice of internal doors and skirtings
Anticipated completion date November 2025











