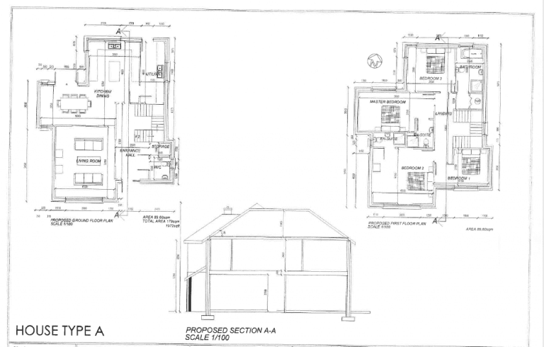
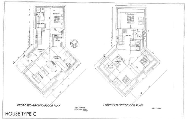
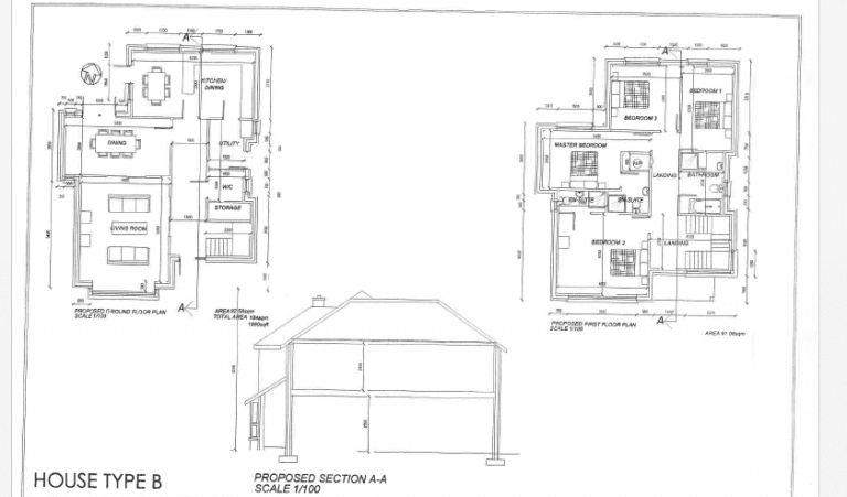
Exceptional ready to go development site with full planning permission for 6 luxury detached properties. Woodberry Court is Roscommon’s premier residential area overlooking Roscommon Golf Club and has an exceptional proven sales record.
The final phase consists of 5 detached two storey houses and one dormer bungalow with all services on site and individual connections installed. In the course of designing this development, emphasis has clearly been placed on ensuring that these are luxury houses at the upper end of the market, a comparable standard of luxury homes is rarely found in such an ideal location. One of the major design attractions of houses in Woodberry Court is the natural light provided in every room of the houses, through the inclusion of large windows which are a feature of the development. Planning reference 20/3008
Early enquiry is advised to sole agents Oates Auctioneers.
Price Region POA










