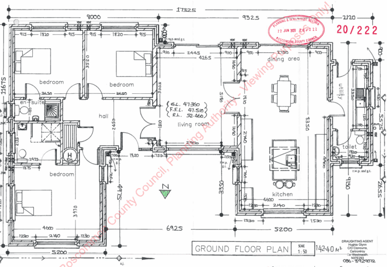
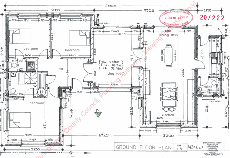
Prime elevated field with the benefit of full planning permission to build a residence thereon, Ref: Roscommon County Council 20/222. Spacious site area c. 2.3 acres with natural elevation and panoramic views of the surround countryside.
The site has the benefit of stud railings to the front together with generous landscaping and trees sewn onsite.
Early viewings advised by the Auctioneer.





